Nieruchomość:
mieszkanie

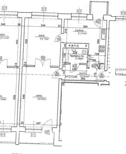
Metraż:
54 m²

Lokalizacja:
Kraków Prądnik Czerwony ul. Młyńska

Piętro: 2 z 4
Liczba pokoi: 2
Balkon: TAK
Gaz: TAK
Stan: do remontu
Rok budowy: 1965
Rodzaj kuchni: oddzielna
ID oferty: 571567

649000 zł

OPIS NIERUCHOMOŚCI

Polecamy do sprzedaży 2-pokojowe mieszkanie o powierzchni 54 m? z dwoma balkonami, zlokalizowane na Olszy przy ul. Młyńskiej, dz. Prądnik Czerwony. Mieszkanie składa się z 2 przestronnych pokoi o powierzchni 19 m2 oraz 14,7 m2, kuchni z jadalnią ( 11,6m2), przedpokoju oraz łazienki. Do lokalu przynależy piwnica ok.9m2. Mieszkania posiada 2 balkony, większy skierowany na południowy zachód. Lokal wymaga remontu, co daje możliwość aranżacji według własnych potrzeb. Istnieje możliwość zmiany aranżacji na 3 pokoje. Posiada okna plastikowe, na podłogach w pokojach oraz jadalni znajduje się klimatyczny parkiet, w łazience płytki. Ogrzewanie z sieci miejskiej, ciepła woda z piecyka gazowego. Czynsz wynosi 680 zł. Mieszkanie położone jest na 2 piętrze w 4-piętrowym budynku z lat 60-tych. Budynek po termomodernizacji. Osiedle oferuje pełną infrastrukturę: przedszkole, szkoła, park z placem zabaw, sklepy spożywcze, Alma, CH Krokus, Park Wodny, Multikino oraz Tauron Arena. W sąsiedztwie znajduje się kompleks biurowy Quattro Business Park. W pobliżu można korzystać z licznych terenów rekreacyjnych m.in. Park Lotników. Mieszkanie bardzo dobrze skomunikowane, wkrótce również dzięki nowej linii tramwajowej. Zapraszamy na prezentację i do negocjacji ceny. ID oferty = 571567

Kontakt: +48 604 478 119

Pośrednik w obrocie nieruchomościami biuro ?Property-Brokers .pl S.C.?, nr licencji zawodowej 9057. Oferujemy bezpłatną pomoc przy uzyskaniu kredytu. Niniejsza oferta handlowa nie stanowi oferty w rozumieniu przepisów Kodeksu Cywilnego oraz innych właściwych przepisów prawnych. Prezentacja oferty jest bezpłatna po podpisaniu standardowej umowy pośrednictwa zgodnie z wymogami ustawy o gospodarce nieruchomościami

GALERIA ZDJĘĆ